دانلود رایگان نقشه ویلا 100 متری دو خوابه و نقشه ویلا 200 متری سه خوابه
طراحی نقشه ویلا نیاز به برنامهریزی دقیق، توجه به جزئیات و درک نیازهای ساکنین دارد. همچنین علاوه بر داشتن یک نقشه مناسب، باید به سایر موارد مانند استفاده از مصالح با کیفیت و اجرای دقیق و اصولی نیز توجه شود.
به گزارش شبکه اطلاع رسانی راه دانا؛ امروزه ویلاهای ۱۰۰ و ۲۰۰ متری، پرطرفدارترین بناهای در حال ساخت بهشمار میروند. در طراحی و ساخت ویلا، ابتدایی ترین مرحله، تهیه نقشه ویلا است. در واقع، طراحی نقشه ویلا یکی از مراحل اساسی در ساخت و ساز است که تأثیر مستقیمی بر روند اجرای پروژه دارد.
یک نقشه ویلا 100 متری استاندارد، باید نیازهای ساکنین را در نظر بگیرد، از فضا استفاده بهینه کند و با اصول مهندسی و معماری مطابقت داشته باشد. همچنین، توجه به نورگیری و استفاده از متریالهای مقاوم در طراحی پلان ویلا، علاوه بر افزایش کیفیت زندگی ساکنان، موجب کاهش هزینهها و مصرف انرژی نیز میشود.
انتخاب یک مهندس حرفهای که تجربه کافی در این زمینه داشته باشد و مسلط به نرمافزارهای طراحی باشد، اهمیت بسیاری دارد. ساخت و ساز بر اساس اصول فنی و استانداردهای مهندسی، ایمنی بنا را تضمین میکند. مهندسین مجرب از مصالح مناسب و طراحی سازه ای استاندارد استفاده میکنند تا ویلا در برابر زلزله، باد و سایر عوامل طبیعی مقاوم باشد. همچنین، با در نظر گرفتن موقعیت زمین، اقلیم منطقه و چشماندازهای طبیعی، بهترین جانمایی را برای بخشهای مختلف ویلا در نظر میگیرند تا بتوان از مناظر زیبا بیشترین بهره را برد.
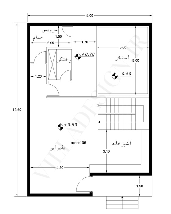
نقشه ویلا دوبلکس 100 متری
طراحی ویلا بصورت دوبلکس گزینه مناسبی برای ویلاهایی با متراژ کم یا زمین های محدود است که میتوان با طراحی هوشمندانه از فضای موجود استفاده بهینه کرد. یکی از رایج ترین سبک های طراحی نقشه ویلا 100 متری نیز مدل دوبلکس است. برای طراحی نقشه ویلا، ابتدا مهندسین موقعیت و ابعاد زمین را بررسی میکنند، سپس بودجه و نیازهای کارفرما مورد توجه قرار میگیرد و با در نظر گرفتن این موارد، اقدام به طراحی نقشه میکنند. در طراحی نقشه ویلا دوبلکس 100 متری، معمولا طبقه اول را برای فضای نشیمن، آشپزخانه و سرویس بهداشتی در نظر میگیرند و طبقه دوم به فضاهای خصوصی تر مانند اتاق خواب ها اختصاص داده می شود.
بطورکلی، ویلا 100 متری دوبلکس این امکان را به شما میدهد که بتوانید از فضای موجود استفاده بهینه کنید و دو طبقه مجزا داشته باشید که باعث راحتی بیشتر ساکنین نیز می شود. همچنین طراحی نقشه ویلا 100 متری بصورت دوبلکس، ظاهر لوکس و جذابی دارد و باعث افزایش ارزش ملک شما می شود.
طراحی نقشه ویلا 200 متری شیک
ویلاهای 200 متری جزو ویلاهایی با متراژ متوسط هستند که اگر پلان این ویلاها بصورت اصولی و توسط مهندسین مجرب طراحی شود، میتواند تمام نیازهای ساکنین را با وجود متراژ متوسط تامین کند. مجموعه آرین ویلا با تخصص و تجربه بالایی که در زمینه طراحی نقشه ویلا دارد میتواند به شما جهت تهیه نقشه ویلا 200 متری شیک کمک کند. مهندسین این مجموعه ایده های خلاقانه بسیاری در زمینه طراحی نقشه ویلا دویست متری دارند که باعث می شود بتوانید یک ویلای خاص و منحصر به فرد داشته باشید. در این طراحی، هر جزئیات با دقت به گونهای طراحی میشود که نه تنها زیبایی ظاهری ویلا حفظ شود، بلکه کارایی و راحتی ساکنان نیز به حداکثر برسد. برای مشاهده نمونه نقشه خانه ویلایی 200 متری طراحی شده توسط مهندسین آرین ویلا، می توانید وارد سایت این مجموعه شوید.

برای طراحی نقشه ویلا 200 متری شیک بهتر است در محوطه سازی فضای بیرونی ویلا امکاناتی مانند استخر، آبنما، آلاچیق و قرار دادن فضایی برای نشیمن نیز در نظر بگیرید تا ساکنین بتوانند اوقات فراغت خود را در آن سپری کنند و از امکانات تفریحی ویلا استفاده کنند.

نقشه ویلا مدرن 200 متری سه خوابه
برای طراحی نقشه ویلا مدرن، باید یک سری موارد رعایت شود تا علاوه بر زیبایی، کارایی و راحتی ساکنین را نیز تأمین کند. از جمله مواردی که باید مورد توجه قرار بگیرد، جانمایی صحیح فضاها، حداکثر استفاده از نور طبیعی، توجه به امکانات درخواستی کارفرما، تفکیک مناسب بین فضاهای عمومی مانند نشیمن و آشپزخانه و فضای خصوصی مانند اتاق خوابها و ... است.
زمان طراحی پلان ویلا، مهندسین بر اساس متراژ، ابعاد ویلا و نیاز کارفرما، تعداد اتاق خواب ها را تعیین میکنند. در طراحی نقشه ویلا 200 متری معمولا 3 اتاق خواب در نظر میگیرند که با توجه به نیاز کارفرما می توان یک یا دو اتاق خواب را بصورت مستر با حمام و سرویس اختصاصی طراحی کرد. داشتن دو اتاق خواب مستر نه تنها راحتی بیشتری فراهم میکند، بلکه حریم خصوصی ساکنین نیز حفظ می شود.
استفاده از متریال های مدرن و تکنولوژی هوشمند در نقشه ویلا مدرن ۲۰۰ متری ۳ خوابه، جلوهای شیک و لوکس به بنا میبخشد.
نقشه های معماری ویلا 100 متری دو خوابه
نقشه ویلا علاوه بر اینکه راهنمایی برای ساخت است، نقش اساسی در تعیین موقعیت دقیق فضاها، مسیرهای دسترسی و محوطه اطراف ویلا دارد. با طراحی دقیق و هوشمندانه نقشه ویلا میتوان از فضای موجود استفاده بهینه داشت بگونه ای که هیچ فضایی بلااستفاده نباشد. به این منظور، همکاری با تیم مهندسین و معماران حرفهای برای اجرای دقیق نقشهها نیز اهمیت بسیاری دارد.

ویلاهای صد متری محبوبیت بسیاری بین مردم دارند و معمولا طراحی نقشه ویلا 100 متری بصورت دو خوابه انجام می شود. برای افرادی که به دنبال یک ویلای جمع و جور و کاربردی با هزینه مناسب هستند، طراحی نقشه های معماری ویلا 100 متری دو خوابه پیشنهاد می شود. در صورت نیاز می توانید یکی از اتاق خواب ها را بصورت مستر نیز طراحی کنید. نقشه های معماری ویلا 100 متری دو خوابه را میتوان بصورت دوبلکس یا فلت طراحی کرد.
بهتر است قبل از اینکه اقدام به طراحی و ساخت ویلا کنید، از یک شرکت معتبر مشاوره بگیرید و بودجه و نیاز خود را به آنها اعلام کنید تا آنها بتوانند بهترین نقشه را برای ویلا شما طراحی کنند سپس ویلای شما را به مرحله اجرا برسانند. اگر قصد تهیه نقشه ویلا 100 متری دو خوابه را دارید، مجموعه آرین ویلا پس از انجام مشاوره رایگان و راهنمایی کامل میتواند بهترین نقشه ویلا را به شما ارائه دهد.
سخن آخر
در نهایت، طراحی پلان ویلا های 100 و 200 متری باید به گونهای انجام شود که از هر متر مربع آن بهترین استفاده صورت گیرد. همچنین در این طراحی باید بودجه کارفرما را در نظر بگیرید و با توجه به آن تصمیم گیری کرد که از چه امکاناتی در طراحی و ساخت ویلا استفاده شود.
معمولا ویلاهای 100 متری مناسب افرادی است که به دنبال فضایی کاربردی و کم هزینه با طراحیهای مدرن و دلباز هستند، در حالی که ویلاهای 200 متری گزینهای مناسب برای خانوادهها یا افرادی است که به فضایی وسیعتر و امکانات بیشتر نیاز دارند. طراحیهای پلان باز، بهرهبرداری از نور طبیعی، استفاده از متریال مدرن و در نظر گرفتن محوطهسازی مناسب، از جمله ویژگیهای مهم در طراحی نقشه ویلا 100 و 200 متری است. در نهایت، نقشههای اصولی و کاربردی باعث افزایش مقاومت، زیبایی و راحتی ساکنین ویلا میشوند و ویلایی ایدهآل و متناسب با نیازهای شخصی شما فراهم میکنند. یکی از خدمات حرفه ای مجموعه آرین ویلا، طراحی نقشه ویلا با متراژ های مختلف است. پس میتوانید برای تهیه نقشه ویلا خود از مهندسین این مجموعه کمک بگیرید.
ارسال دیدگاه